![]() |
| Copyright (c) TOKYO POLYTECHNIC UNIVERSITY All rights reserved | |
| Aerodynamic Databese of High-rise Buildings |
| Test model case | |
| Model geometric parameters | |
| Breadth/Depth/Height=300:100:300; Model scale=1/400 | |
| Pressure tap locations | |
| Figure--> | |
| Wind tunnel test result |
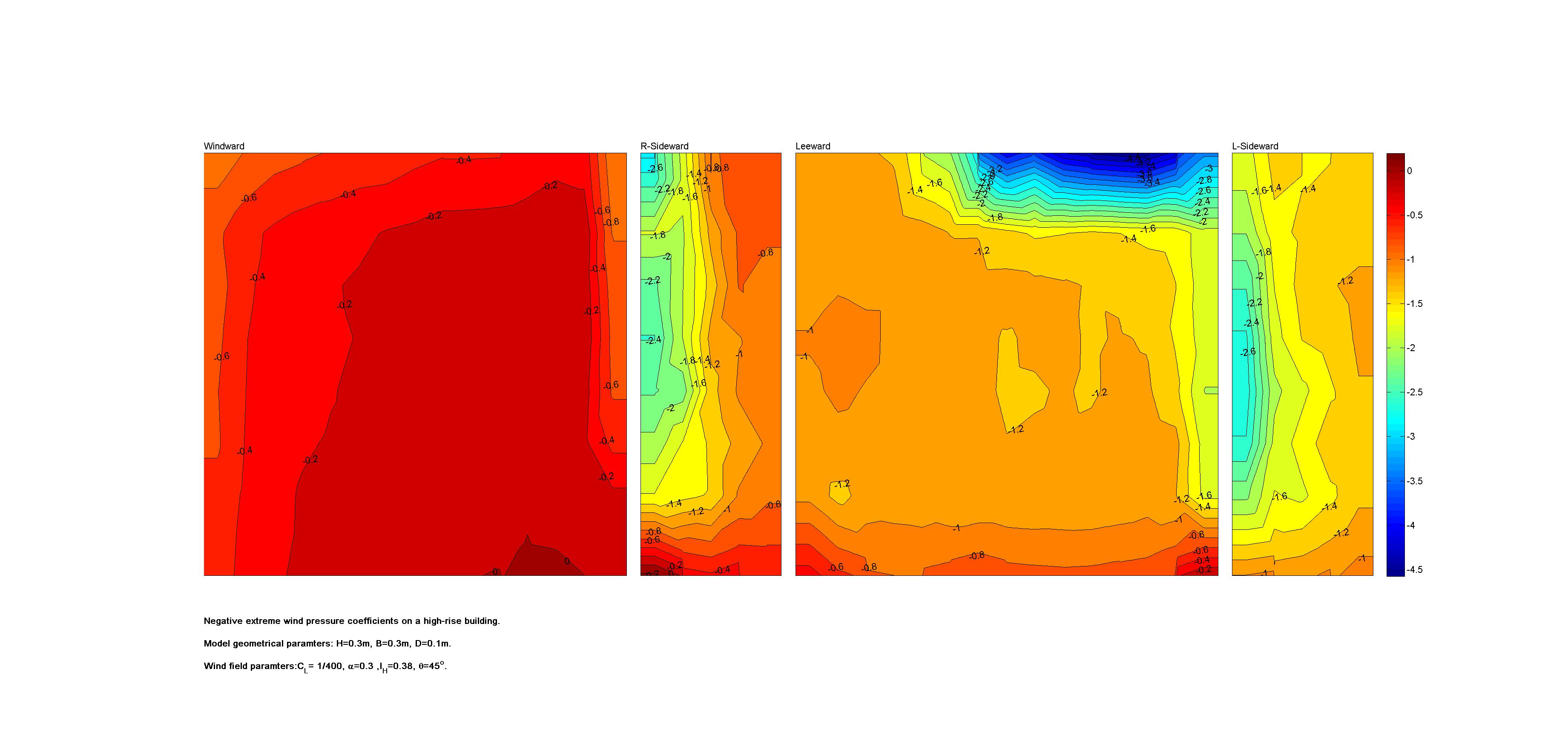
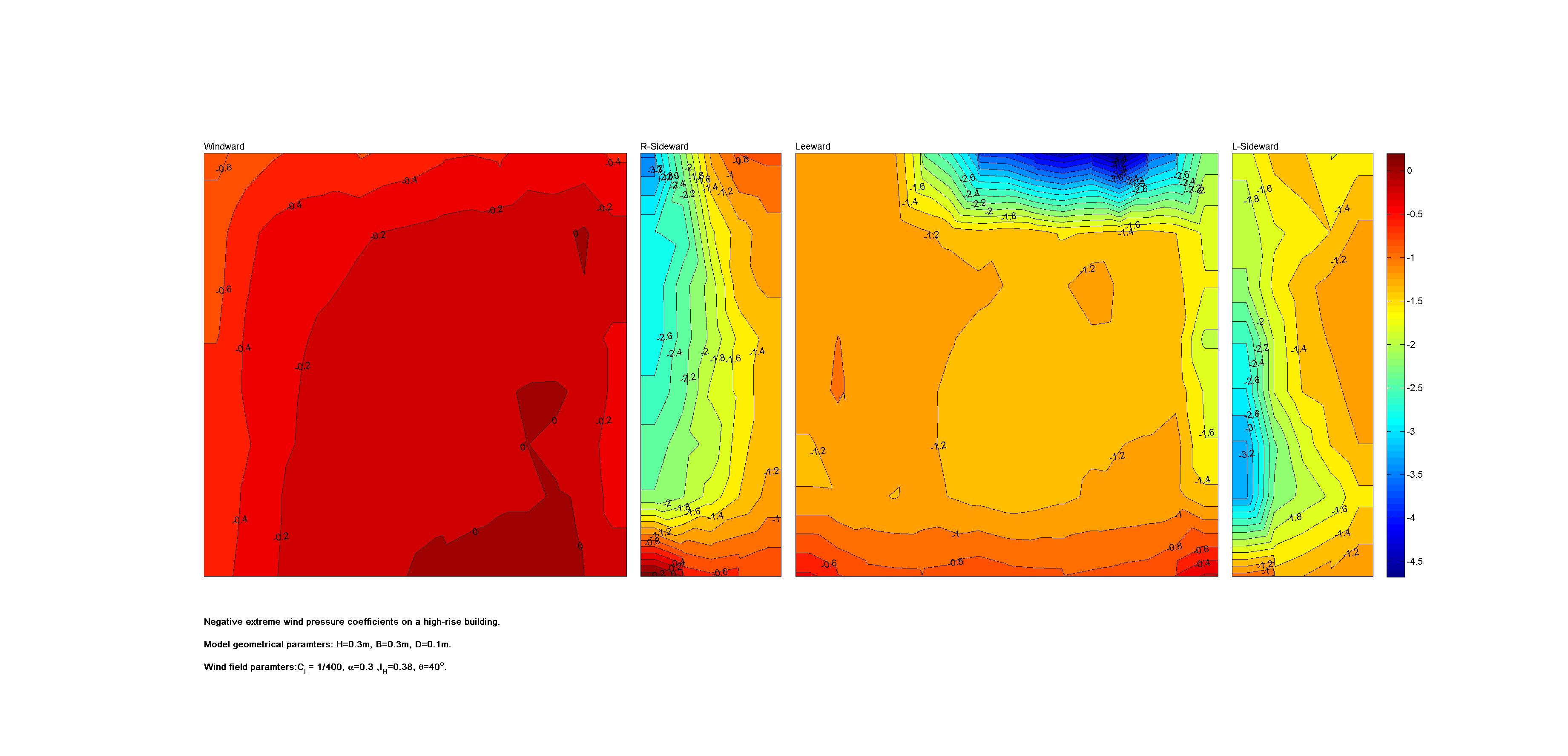
| Contours of local wind pressure coefficients |
| Wind direction | 0o | 5o | 10o | 15o | 20o | 25o | 30o | 35o | 40o | 45o | 50o | 55o | 60o | 65o | 70o | 75o | 80o | 85o | 90o | 95o | 100o |
|---|---|---|---|---|---|---|---|---|---|---|---|---|---|---|---|---|---|---|---|---|---|
| Mean values | |||||||||||||||||||||
| RMS values | |||||||||||||||||||||
| Max values | |||||||||||||||||||||
| Min values |
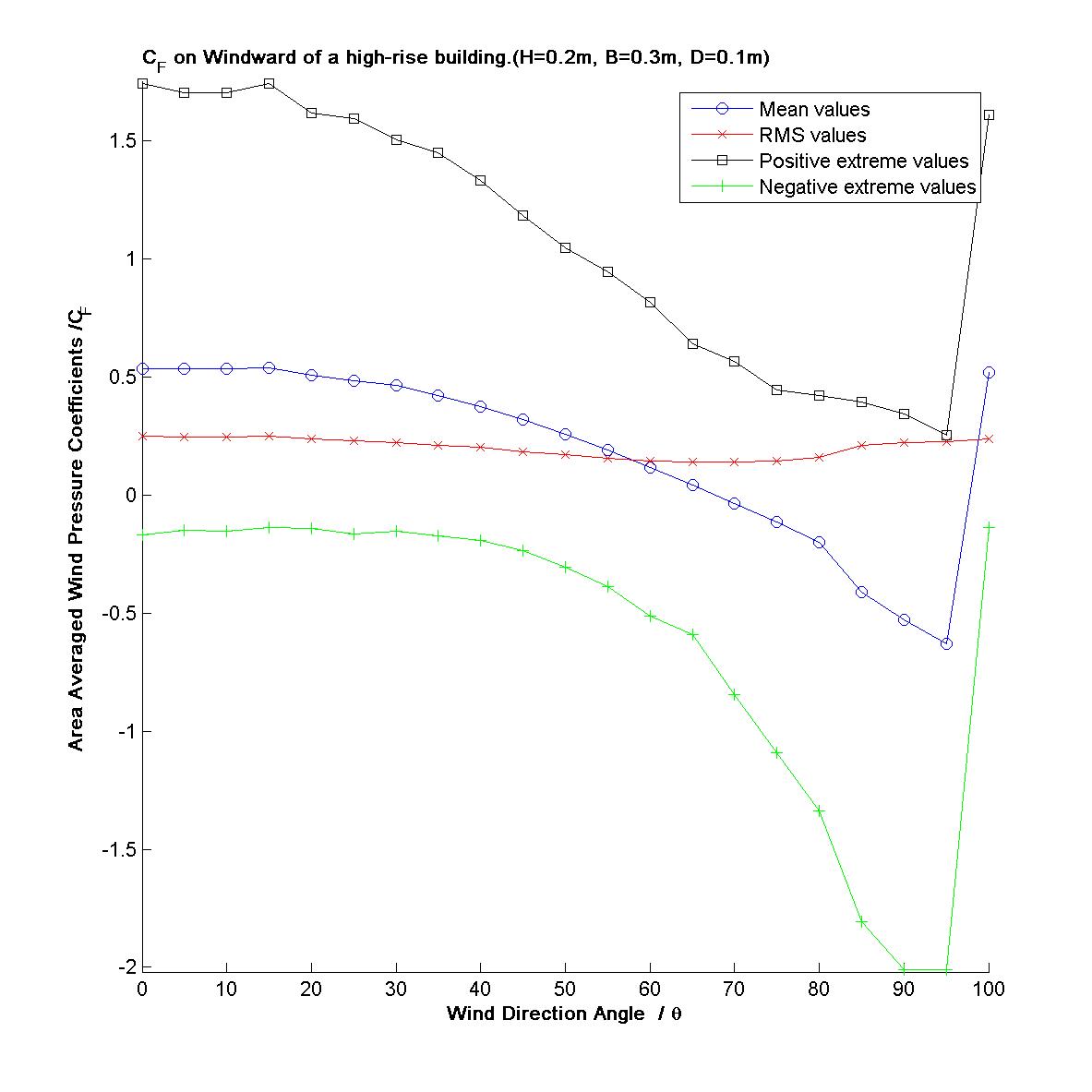
| Graphs of area-average wind pressure coefficients |
| Windward surface | Right sideward surface | leeward surface | Left sideward surface |
|---|---|---|---|
| Time series of point wind pressure coefficients (Data files) |
| Wind direction | 0o | 5o | 10o | 15o | 20o | 25o | 30o | 35o | 40o | 45o | 50o | 55o | 60o | 65o | 70o | 75o | 80o | 85o | 90o | 95o | 100o |
|---|---|---|---|---|---|---|---|---|---|---|---|---|---|---|---|---|---|---|---|---|---|
| Data files(.mat) |
![]()